2A Smith Street, Freemans Bay

Property Media

Property mainbar sidebar

Property Mainbar

2A Smith Street, Freemans Bay

SOLD

3
1
1

Property Mobile Panel

For Sale

Property Details

Property Type House

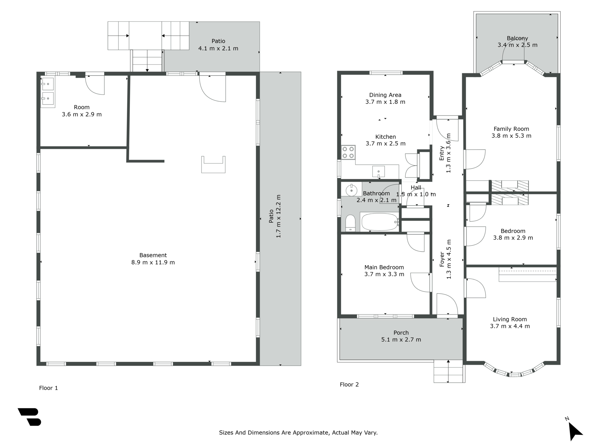
Short Notice Auction!!

Opportunity knocks with this character 1920's very tired bungalow. First time for sale for probably over 60 years!

Sunny north facing aspect with off street parking with huge potential to add value or maybe demolish (with Council Consent) and build your new dream home to take advantage of the great sea, harbour and also the Sky Tower views.

It's a brilliant location, surrounded by quality mansions and adjacent to the Council Reserve, it's only a short stroll to the Ponsonby Strip where you will enjoy the trendy bars, boutiques, cafes and award-winning restaurants.

Be quick as these "old timers" are like hen's teeth - very hard to find!

View: 2A Smith Street, Freemans Bay (off Hepburn Street)


Call or text Steven Glucina 021 888 455 at LJ Hooker, Licensed REA (2008).
Email: [email protected] for the information pack.

Property Brochures

  • Property ID CWBGUK

property map

Property Sidebar

For Sale

Property Details

Property Type House

Sidebar Navigation

How can we help?

listing banner

Ask a question

Please send me more information on...

listing item

listing item

listing item

listing item