8 Allen Road, Green Island

Property Media

Property mainbar sidebar

Property Mainbar

8 Allen Road, Green Island

SOLD

3
1
1

Property Mobile Panel

For Sale

Property Details

Property Type House

Land 773m²

Instructions Are Clear, This Home Must Be Sold!

Auction Location: 63 Musselburgh Rise, Musselburgh 9013

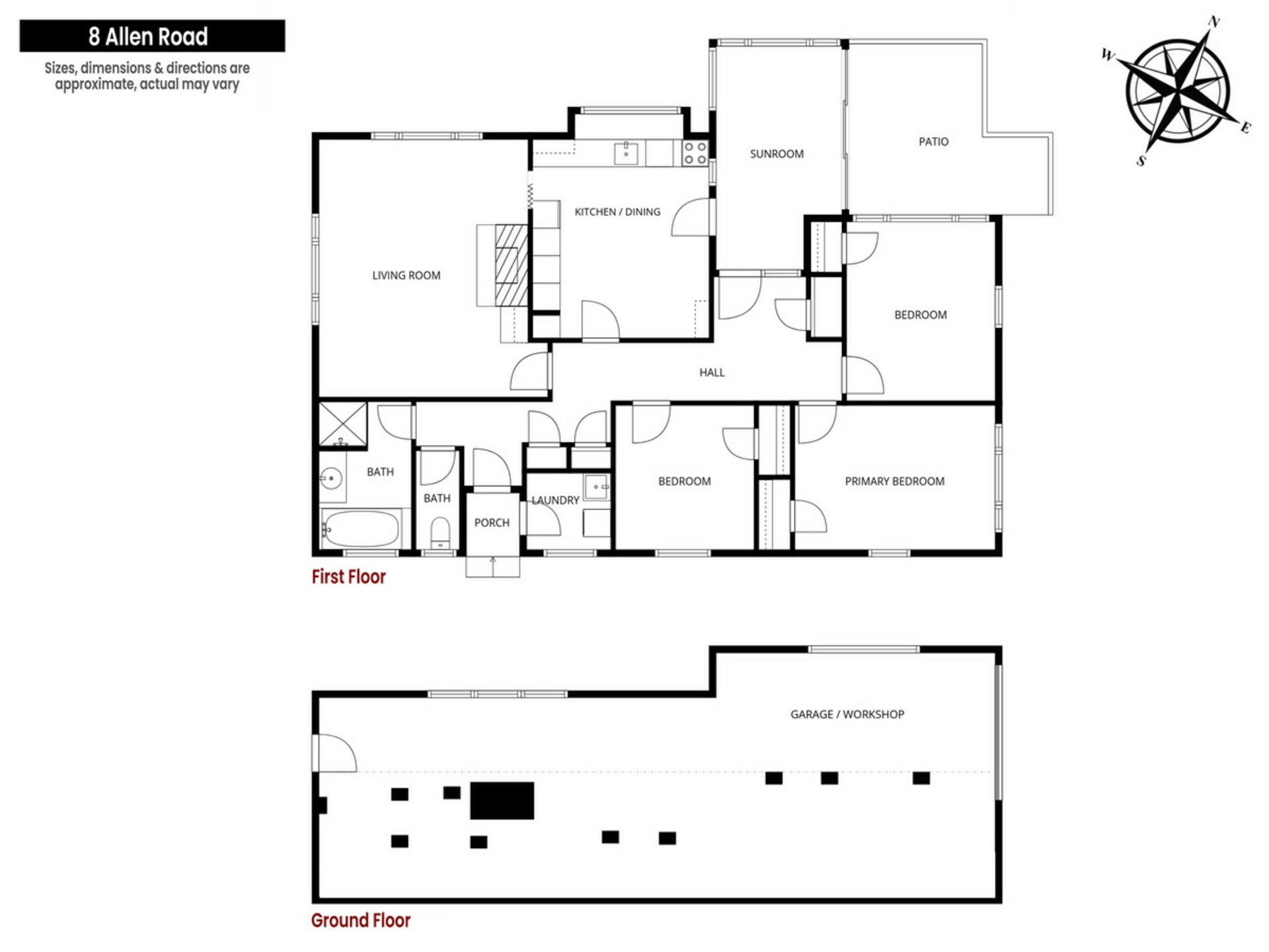
Tucked away on the hillside, this home feels like a sanctuary - private, peaceful, and surrounded by greenery. From the moment you step inside, there's an undeniable warmth and a sense of ease, the kind of homely feel that instantly makes you relax.

The outlook here is simply beautiful - from the kitchen, living, and sunroom you're treated to sweeping views across Saddle Hill and Green Island, the kind you could happily gaze at all day. Even the master bedroom shares this outlook, so you wake up each morning to a calming scene. Sunlight streams into the sunroom, making it the perfect spot for your morning coffee, an afternoon read, or just soaking in the peaceful surroundings.

The home itself flows wonderfully, with three bedrooms, all with built-in wardrobes, a family bathroom with both bath and shower, and the bonus of a separate toilet and laundry. Outside, a patio wrapped in a jasmine bush gives you yet another sun-soaked space, while established trees and bushes surround the home in colour and privacy.

Practicality hasn't been forgotten either, there's plenty of off-street parking and a single garage/ workshop. Inside is tidy and comfortable, ready to move in, but also offering loads of potential if you'd like to make it truly your own.

Whether you're dreaming of your first home, looking for a renovation project or just want to move in and settle down, this property is in a location that delivers both calm and convenience making it a brilliant choice. Not far from the beach, just minutes to Green Island shopping, and set in a quiet, elevated position -- it's a place that feels both connected and tucked away.

A home with heart, views with soul, and a setting that's nothing short of lovely.

Property Brochures

  • Property ID 3QB9GDS

property map

Property Sidebar

For Sale

Property Details

Property Type House

Land 773m²

Sidebar Navigation

How can we help?

listing banner

Ask a question

Please send me more information on...

listing item

listing item

listing item

listing item