3 Bishop Verdon Close, Mosgiel

Property Media

Property mainbar sidebar

Property Mainbar

3 Bishop Verdon Close, Mosgiel

SOLD

4
2
2

Property Mobile Panel

For Sale

Property Details

Property Type House

Land 825m²

The Price is Right!

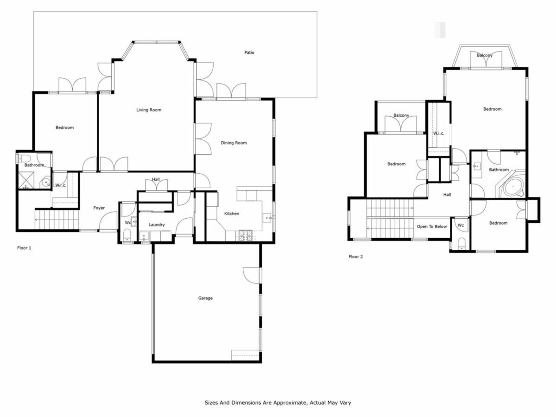
Welcome to this lovely 4-bedroom, 2-bathroom home, offering an impressive 260m� of living space on a generous 825m� section. Situated in a serene and secluded neighbourhood, this property perfectly combines comfort, elegance, and tranquility.
On the ground floor, you'll be greeted by an open-plan kitchen and living area, complemented by a separate lounge. The seamless flow to the outdoors enhances the sense of space and light, creating a warm and welcoming environment for family gatherings. Step outside to enjoy the meticulously maintained garden and section, designed to offer privacy and ample sunlight. The thoughtfully crafted outdoor oasis is ideal for relaxation and entertaining during the warmer months.
The upstairs master bedroom serves as a true retreat, featuring a charming balcony with picturesque views of the surrounding area. The upper level also includes two additional bedrooms and a family bathroom, accessible from both the master bedroom and the landing. With one bedroom and bathroom located downstairs, this home is well-suited for multi-generational living. An extra third toilet with a handbasin is conveniently available for guests.
Located in a quiet cul-de-sac, this home offers a peaceful setting while remaining close to essential amenities. It's the perfect choice for anyone seeking a serene lifestyle.

Property Brochures

  • Property ID 3NC6GDS

property map

Property Sidebar

For Sale

Property Details

Property Type House

Land 825m²

Sidebar Navigation

How can we help?

listing banner

Ask a question

Please send me more information on...

listing item

listing item

listing item

listing item